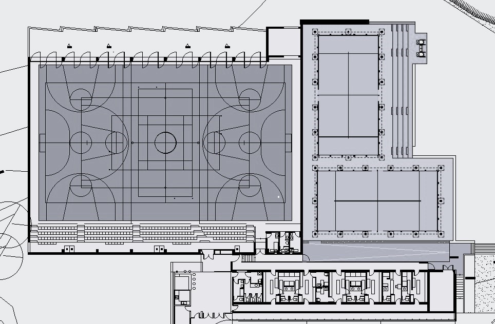
El Ayuntamiento continúa adelante con su proyecto de modernización y mejora de las infraestructuras deportivas, ahora también con la construcción de dos nuevas pistas de pádel cubiertas, que se sumarán a las instalaciones del Pabellón Cubierto Municipal.

Una actuación muy demandada por los aficionados a este deporte y el Club de Pádel Castilblanco, que permitirá practicar pádel durante todo el año, inclusive en los días de lluvia.

Las nuevas pistas que se ubicarán en la  zona de acceso al Pabellón, contarán con césped de última generación, una estructura perimetral de vidrio y una cubierta metálica que permitirá la ventilación natural cruzada. También estarán equipadas con focos de iluminación, permitiendo su uso en horario nocturno.

 

Desde esta semana, el proyecto se encuentra en fase de licitación, y las empresas interesadas podrán presentar sus ofertas hasta el próximo 26 de junio, a través de la sede electrónica del Ayuntamiento.

Las obras, con un presupuesto de 278.000 euros, podrán ejecutarse gracias a la subvención gestionada por el Ayuntamiento dentro del Programa  de   Desarrollo Rural de Andalucía 2014-2020, con una financiación máxima de 200.000 euros procedentes de los fondos FEADER.

El Alcalde, José Manuel Carballar, ha destacado el compromiso del Equipo de Gobierno para que Castilblanco siga avanzando en la mejora de sus servicios e infraestructuras deportivas.

"Con la construcción de estas nuevas pistas daremos respuesta a nuestros vecinos, al mismo tiempo que seguiremos fomentando la práctica deportiva en unas instalaciones modernas, accesibles y bien equipadas".

Por su parte, las pistas actuales continuarán ofreciendo sus servicios, de forma que los usuarios también podrán seguir practicando pádel en el Polideportivo.

Imagen
Imágenes
Ubicación
Categoría noticia
Mostrar en el carrusel de la sección
No
Fecha
Vie, 20/06/2025 - 09:04